





<物件概要>
物件名:デトム・ワン鴨川
所在地:京都市上京区
総戸数:48戸
構造・所在階:RC造4階建て 3階部分
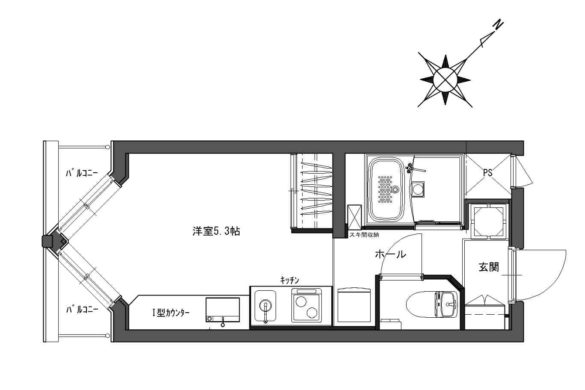
専有面積:17.52㎡
間取り:1R
建物竣工年:1986年2月
Re-Born竣工日:2025年11月
<特徴> I型スタイリッシュカウンター
スタイリッシュパントリー
<設備> 2口IHコンロ付キッチン(W1200)
独立洗面台
浴室換気乾燥機
温水洗浄機能付便座
アイスグリーンカラーがアクセントとなったこのお部屋は、森の中を思わせる自然なイメージに、オークの床材が落ち着いたナチュラルな空間を演出しています。居室内のカウンターにあえて洗面を、デッドスペースとなりがちな廊下の隙間にスリムパントリーを、ワンルームという限りあるスペースの中でより機能的に、スタイリッシュに、設計されました。

147.デトム・ワン北山レディース

146.デトム・ワン鴨川

145.デトム・ワン烏丸鞍馬口

144.デトム・ワン西陣PartⅢ

143.デ・リード金閣寺道

142.デトム・ワン北山レディース

141.デトム・ワン烏丸一条

140.デトム・ワン一条通

139.デトム・ワン鴨川

138.デトム・ワン衣笠

137.デトム・ワン衣笠

136.デトム・ワン西陣南

135.デトム・ワン東福寺

134.デトム・ワン三条通

133.デトム・ワン烏丸鞍馬口Pa…

132.デトム・ワン衣笠

131.コスモエル下鴨

130.デトム・ワン西陣PartⅢ

129.デトム・ワン西陣

128.デトム・ワン烏丸鞍馬口

127.デトム・ワン四条大宮

126.デトム・ワン今出川通

125.デトム・ワン銀閣寺道

124.デトム・ワン四条大宮PartⅡ

123.デ・リード金閣寺道

122.デトム・ワン北山レディース

121.デトム・ワン北山レディース

120.デトム・ワン西陣南

119.デ・リード金閣寺道

118.デトム・ワン東福寺

117.デトム・ワン烏丸二条

116.デ・リード御所北

115.デトム・ワン西陣聚楽

114.デトム・ワン北山レディース

113.デトム・ワン北山レディース

112.デ・リード金閣寺道

111.デトム・ワン北山レディース

110.デトム・ワン西陣PartⅡ

109.コスモエル下鴨

108.デトム・ワン北山レディース

107.デトム・ワン二条城南

106.ライオンズマンション京都…

105.ライオンズマンション京都…

104.デ・リード御所北

103.デトム・ワン西陣聚楽PartⅡ

102.コスモエル下鴨

101.デトム・ワン西陣

100.デトム・ワン烏丸五条

99.ライオンズマンション四条…

98.デトム・ワン北山レディース

97.デトム・ワン二条城南

96.デトム・ワン衣笠

95.デトム・ワン三条通

94.デトム・ワン西陣

93.デトム・ワン一条通

92.デトム・ワン一条通

91.ライオンズマンション京都…

90.デ・リード御所北

89.デトム・ワン一条通

88.ライオンズマンション京都…

87.デトム・ワン四条大宮PartⅡ

86.デトム・ワン烏丸二条

85.ライオンズマンション京都…

84.デトム・ワン今出川通

83.デトム・ワン烏丸二条

82.デトム・ワン烏丸一条PartⅡ

81.デトム・ワン烏丸二条

80.デトム・ワン銀閣寺道

79.デトム・ワン三条通

78.デトム・ワン北山レディース

77.デトム・ワン御所南

76.デ・リード御所北

75.デ・リード御所北

74.デトム・ワン西陣聚楽

73.デトム・ワン西陣PartⅢ

72.デトム・ワン御所南

71.ライオンズマンション京都…

70.デトム・ワン西陣聚楽

69.デトム・ワン西陣PartⅢ

68.デトム・ワン西陣PartⅢ

67.デトム・ワン西陣PartⅢ

66.デ・リード御所北

65.デ・リード御所北

64.デトム・ワン烏丸一条

63.ライオンズマンション京都…

62.デ・リード京都東洞院

61.ライオンズマンション京都…

60.デトム・ワン西陣聚楽

59.ライオンズマンション京都…

58.ライオンズマンション京都…

57.デトム・ワン三条通

56.デ・リード御所北

55.デトム・ワン千本智恵光院

54.ライオンズマンション京都…

53.デトム・ワン西陣PartⅢ

52.デトム・ワン西陣

51.デトム・ワン東山レディース

50.コスモエル下鴨

49.デトム・ワン一条通

48.デトム・ワン衣笠

47.ライオンズマンション四条…

46.デトム・ワン北山レディース

45.デ・リード金閣寺道

44.デトム・ワン一条通

43.デトム・ワン御所南

42.デトム・ワン東福寺

41.コスモエル下鴨

40.デトム・ワン烏丸一条

39.デトム・ワン衣笠

38.デ・リード御所北

37.デトム・ワン四条大宮

36.コスモエル下鴨

35.デトム・ワン烏丸五条

34.デ・リード御所北

33.デ・リード御所北

32.デ・リード京都東洞院

31.ライオンズマンション京都…

30.デトム・ワン衣笠

29.デトム・ワン銀閣寺道

28.コスモエル下鴨

27.デ・リード御所北

26.ライオンズマンション京都…

25.デトム・ワン烏丸五条

24.デトム・ワン三条通

23.コスモエル下鴨

22.デトム・ワン御所南

21.デ・リード金閣寺道

20.デトム・ワン西陣PartⅡ

19.デ・リード鴨川公園

18.デトム・ワン二条城南

17.デトム・ワン四条大宮PartⅡ

16.デ・リード河原町

15.デトム・ワン東福寺

14.コスモエル下鴨

13.コスモエル下鴨

12.デトム・ワン北山レディース

11.デトム・ワン三条通

10.デトム・ワン烏丸一条

9.デトム・ワン烏丸五条

8.デトム・ワン鴨川

7.コスモエル下鴨

6.デトム・ワン北山レディース

5.デトム・ワン東山レディース

4.デトム・ワン烏丸二条

3.デトム・ワン衣笠

2.デトム・ワン四条大宮

1.デトム・ワン四条大宮PartⅡ